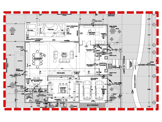
ARQUITECTURA



ARQUITECTURA

Nuestros Arquitectos diseñan casas Modernas, Elegantes y Exclusivas.